Page suivante
Page précédente
Villeurbanne (69100)

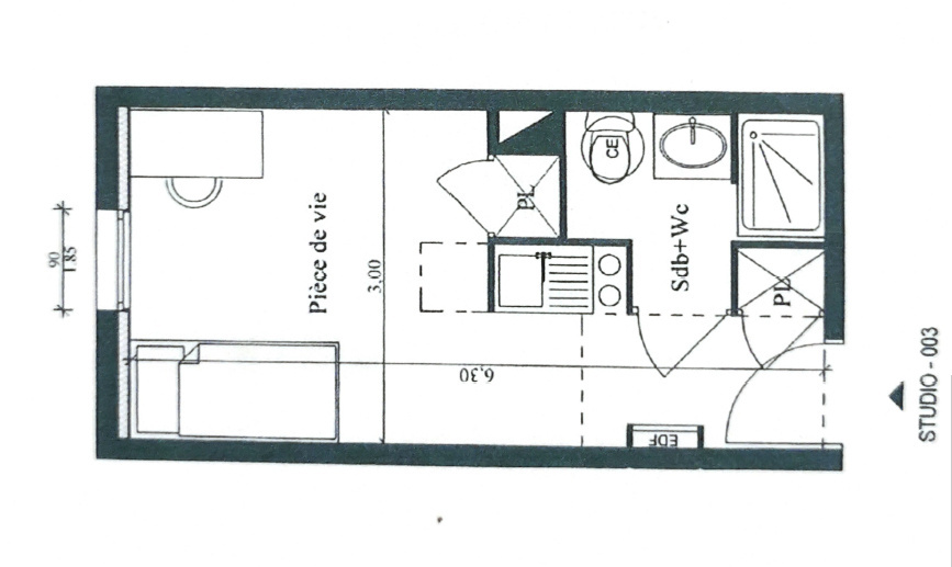
Appartement 1 pièce(s) 18 m²

1
Ascenseur
54 500 €
Réf GD V 2609d

69100 VILLEURBANNE CHARPENNES STUDIO MEUBLE 18m2 VENDU LOUE FISCALITE LMNP LMP 59 000 € STUDIO MEUBLE VENDU LOUE, UNIQUEMENT POUR INVESTISSEUR, FISCALITÉ LMNP OU LMP Loyer annuel : 3896 € TTC Reprise de bail commercial en cours, renouvellement en Avril 2023 pour 11 ans Dans une résidence de services para hôtelière récente, studio meublé d'environ 18 m2, en bon état Pièce principale avec coin cuisine aménagée, salle d'eau et wc Chauffage : individuel radiateur électrique Eau chaude sanitaire : individuel cumulus électrique Lots annexes : / Equipements logement : mobilier Equipements / services copropriété : Internet haut débit illimité, local machines à laver, salle petit déjeuner, salle fitness, local à vélo, parking payant Les avantages : - Fiscalité LMNP très avantageuse (BIC avec amortissement et déduction des charges) - Loyer garantie par bail commercial - Prix attractif - Rentabilité élevée - Gestion de la location déléguée à exploitant professionnel Préparer votre retraite, Protéger votre famille, Créer du patrimoine Nous sommes à votre disposition avec nos partenaires avocat fiscaliste, expert-comptable et banquiers pour étudier la meilleure solution pour vos investissements. Montant moyen annuel des charges courantes: 165 €/an Taxe Foncière : 361 €/an Soumis au statut de la copropriété: total xxx lots dont xx lots habitation Absence de procédure de redressement sur la copropriété DPE: D GES : B Montant estimé des dépenses annuelles d'énergie pour un usage standard : entre 320 € et 470 € / an Date de référence des prix de l'énergie utilisés pour établir cette estimation : 01 01 2021 Honoraires charge Vendeur Image non contractuelle Les informations sur les risques auxquels ce bien est exposé sont disponibles sur le site Géorisques : www.georisques.gouv.fr Ce bien est à vendre en vente interactive réalisée par WINIMMO ENCHERES. Aucuns frais supplémentaire n'est à prévoir ni pour l'acquéreur, ni pour le vendeur. La participation à la vente interactive est soumise à agrément préalable. Toutes les offres seront transmises au vendeur, lequel restera libre dans la sélection de l'offre à laquelle il entend donner suite. Une offre en ligne pendant la vente interactive ne constitue pas une offre ferme et définitive au sens de l'article 1114 du Code Civil, mais une simple intention d'achat. Le prix affiché correspond à un prix de première offre possible honoraires de négociation inclus, étant précisé que ledit prix n'étant pas forcément un prix auquel le vendeur souhaite vendre.


Les informations sur les risques auxquels ce bien est exposé sont disponibles sur le site Géorisques

Bilan énergétique

Diagnostics énergetiques
A propos de ce bien Caractéristiques de ce bien
  • Surface 18 m²
  • carrez 18 m²
  • 1 salle(s) d'eau
  • construit en 2011
  • kitchenette
  • Chauffage individuel : radiateur (electrique)
  • 5 étage(s)
  • ascenseur

Info copro

Copropriété
  • Copropriété Oui
  • Nombre de lots 50
  • Quote part annuelle des charges 165 €
  • Statut du syndic Pas de procédure en cours

Financier

Informations financières
Prix de vente honoraires TTC inclus 54 500 €

Autour du bien

Découvrez le quartier
  • Commerces et santé
  • Loisirs
  • Ecoles
  • Transports
  • Pratique

Simulation

Calcul des mensualités
* Champs obligatoires
Immo7 Agence